<スサノオCK3000> 標準仕様
※操作部詳細
- 1セルスイッチ
- 2ホーンスイッチ
- 3ライトスイッチ
- 4走行・停止レバー
- 5前進・後進レバー
- 6高速・低速レバー
- 7補助ブレーキレバー
<スサノオCK3000> 特徴
| 簡単操作 | 走行停止は、着席状態で安全に行う事ができます。 |
|---|---|
| 異常速度検知式装置 | 降坂時、規定以上の速度が発生した場合、緊急停止します。 |
| 座席一体型牽引車 | 牽引車への乗車を可能にしたことで全長が短くなり、周囲の確認がしやすくより安全な運用が可能になりました。 ※M3000シリーズとの比較 |
| 注意喚起 | ブザー・ライトを装備し、走行中はパトライトが点灯し作業者に注意を促します。 |
<スサノオCK3000> 主要諸元表
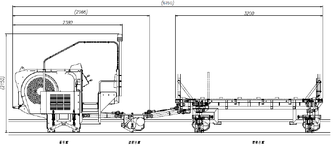
牽引車(座席付:100㎏まで) + 荷物台車
| 名 称 | M 3020 | |
|---|---|---|
| 大きさ | 全 長 (mm) | 6750 |
| 全 幅(mm) | 1230 | |
| 全 高 (mm) | 2150 | |
| 重 量 (Kg) | 1500 | |
| 荷台寸法 (mm) | 3000 × 1200 | |
| 走行性能 | 最大積載量 (Kg)/傾斜(度) | 2000/45 2500/30 ( 3000/30:回数限定) |
| 走行速度 (m/min) | 30(上り)・40(下り) | |
| 最大登坂角度( ° ) | 45 | |
| 乗員数(名) | 2 | |
| 駆動装置 制動装置 |
伝達方式 | エンジン → 遠心クラッチ → Vベルト → ミッション → 駆動輪 |
| 駆動方式 | ピニオン・ラック式 | |
| 降坂ブレーキ | 遠心ブレーキ | |
| 駐停車ブレーキ | 内拡式ブレーキ | |
| 緊急ブレーキ | 内拡式ブレーキ | |
| 非常停止ブレーキ | 内拡式ブレーキ | |
| 安全装置 | 衝突緩和装置 | 前バンパー |
| 警告装置(走行中) | パトライト | |
| その他 | 照明ライト | 15w LED照明 |
| 警報装置 | DC 12v 電子ホーン | |
エンジン
| 型 式 | スバル EH72-2DS |
|---|---|
| 定格出力 | 18PS / 3600rpm |
| 最大出力 | 25PS / 3600rpm |
| 排気量 | 720cc |
| 始動方式 | スターターモーター式 |
| 始使用燃料 | 無鉛ガソリン |
レール
| 型 式 | トリプルレール式 | |
|---|---|---|
| NKMT3000レール | サブレール | |
| 寸法(mm) | 50×50×t3.2 | 50×50×t3.2 |
| 全長(mm) | 3000 | 3000 |
| 全長(mm) | STKR490 | STKR400 |
レール設置角度
エンジン取付角度:23°調整時
エンジン取付角度:13°調整時
ご注意
- ご使用前に取扱説明書をよく読んで、注意して作業してください。
- 安全管理のため、メーカーの登録制となっています。
- 長期間使用しないときは、格納するか雨仕舞いを確実にしてください。
- メーカーの定期点検を行ってください。
- 悪天候や夜間の使用は避けてください。
- 仕様は改良のため、予告なしに変更することがあります。
- 現場状況などにより積載量や運用に制限をさせていただく場合があります。